More Photos
 at 30 Morey Street, Owhata, Rotorua, Bay Of Plenty
FOR SALE

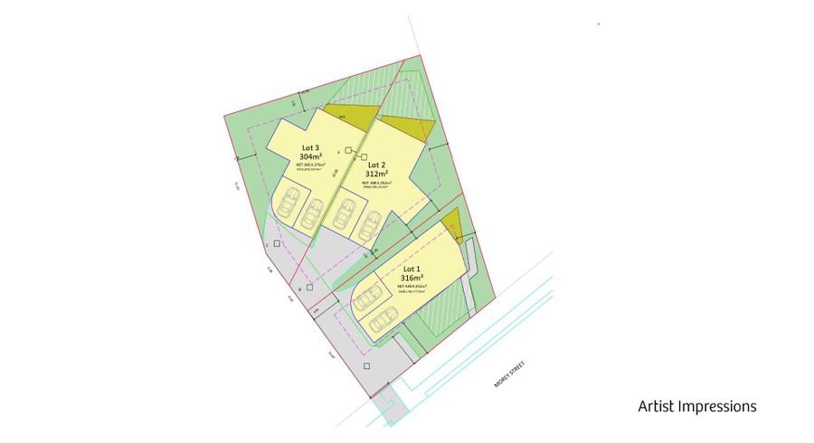
30 Morey Street, Owhata, Rotorua, Bay Of Plenty

Listed: 12 Nov 2025
Price by negotiation

Home loan repayment

Estimated home loan payment:
$1,173/ fortnight

Find the right home loan for you

Whether you’re a first home buyer, or looking to buy your next home, an ANZ Home Loan Coach can help you on your journey.
Advertisement
Raine & Horne - a1S6M000004JRer
Are you the owner? Track your home now.

Home loan repayment

Estimated home loan payment:
$1,173/ fortnight

Find the right home loan for you

Whether you’re a first home buyer, or looking to buy your next home, an ANZ Home Loan Coach can help you on your journey.
Advertisement

Property estimates

These are computer generated price guides only. For a property appraisal, please contact a local agent.